kk-sofiankatu_web

Torikorttelit, Helsinki FI, 2006

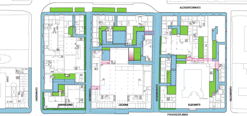
Es handelt sich um ein Revitalisierungsprojekt für das Rathausviertel im Zentrum von Helsinki. Die Stadt beschloss, Innenhöfe und Innenräume für neue Verwendungen zu öffnen. Der Entwurf basiert auf: Offenheit für alle Nutzergruppen, Erhaltung der historischen Identität, Verbindung von Restaurants, Büros und Kultur. Die Innenhöfe der vier Straßenblöcke werden der Öffentlichkeit zugänglich gemacht und miteinander verbunden. Sie werden mit neuen Oberflächenmaterialien und Außenmobiliar versehen. Neue Restaurants, ein Kindertheater, eine ‘Design und Kunst’-Straße, öffentliche Aufführungsorte u.v.a.m. sind vorgesehen. Als Ergebnis der Konzeptphase wird die Immobiliengesellschaft ‘Helsingin leijona’ gegründet, die die Veränderungen des Quartiers steuert.


Auftraggeber K2S Architects Ltd, Stadt Espoo
Zeit 2006 – 2009
Team Antti Ahlava