Torikorttelit, Helsinki FI, 2006
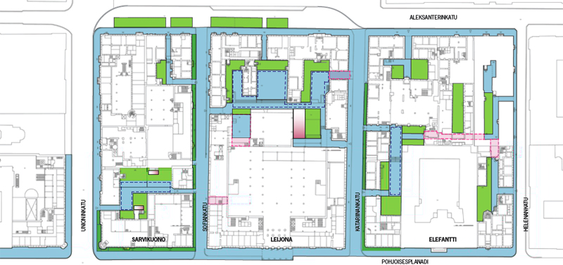
This is a revitalization project for the City Hall quarters in the heart of Helsinki, between Senate Square and Market Square. The city has decided to open up courtyards and indoor spaces for new activities. The principles of the development are: openness to all user groups, preserving historical identity, and combining restaurants, work places and culture. The courtyards of the four blocks become accessible for the public and are connected. They receive new surface materials and outdoor furniture. Numerous new restaurants are projected, as well as a childrens’ centre, a ‘design and art’ street, outdoor performance spaces etc. One result of the concept stage is the establishment of ‘Helsingin leijona’, the real estate company which orchestrates the change.
Client K2S Architects Ltd, The City of Espoo
Time 2006 – 2009
Team Antti Ahlava





