HZ_ZWI_09

Zwicky Areal, Baufelder A6-A9, Wallisellen CH, 2014

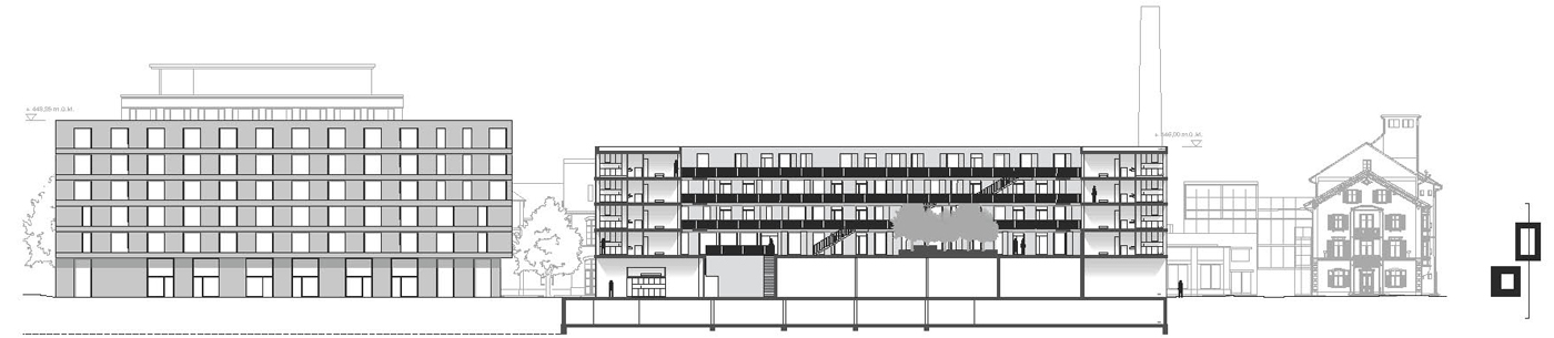
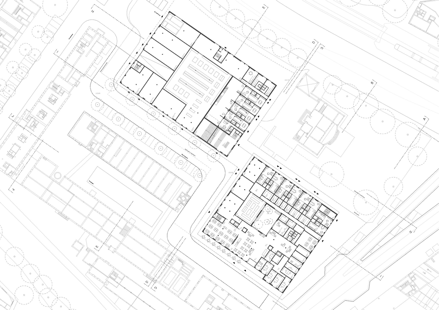
Das Areal der ehemaligen Seidenspinnerei Zwicky ist von Infrastrukturen wie dem Bahnviadukt und der Glattalbahn umgeben und von Ihnen mosaikartig durchschnitten. Mit dem letzten Bauabschnitt auf den Baufeldern A6-A9 sollen diese Teile mit Studentenwohnungen und einem Alterszentrum zusammengeführt werden. Wir schlagen zwei kompakte städtische Blöcke vor, die eine typologisch ähnliche Ergänzung zu den Industrieriegeln bilden. 

Baufelder A6-A7, Studentenwohnen: Der industrielle Kontext spiegelt sich im funktionalen Gebäudekonzept wieder. Der lärmgeschützte Innenhof liegt auf dem Dach der Quartierversorgers. Er wird über ein Foyer, eine Haupttreppe und den gemeinschaftlich genutzten Innenhof erschlossen. Die Wohnungen in den Obergeschossen orientieren sich zum Innenhof und werden über den umlaufenden Laubengang erschlossen. Foyer, Innenhof, Haupttreppe und Laubengang sind als Kommunikationsraum konzipiert. Die Wohnungen sind durchgesteckt, mit Zimmern die Intimität und Rückzugsmöglichkeiten bieten.

Baufelder A8-A9, Alterszentrum: Alle Obergeschosse werden über ein Foyer, welches sich um einen Lichthof orientiert, erschlossen. Ringartige Korridore in der Obergeschossen ermöglichen eine einfache Orientierung, gute Übersicht und Begegnungsmöglichkeiten für die Bewohner. Die Lage der Korridore ermöglicht vom Gebäudeinneren Blicke nach Aussen und in den Innenhof.

Auftraggeber Halter AG
Zeit 2014
Team Tommi Mäkynen, Mirjam Niemeyer, Antti Ahlava, Michelangelo D’Ettorre, Roberto Schumacher