200805 render front

ELKZ Gemeindehaus und Wohnungen, Zürich CH, 2016

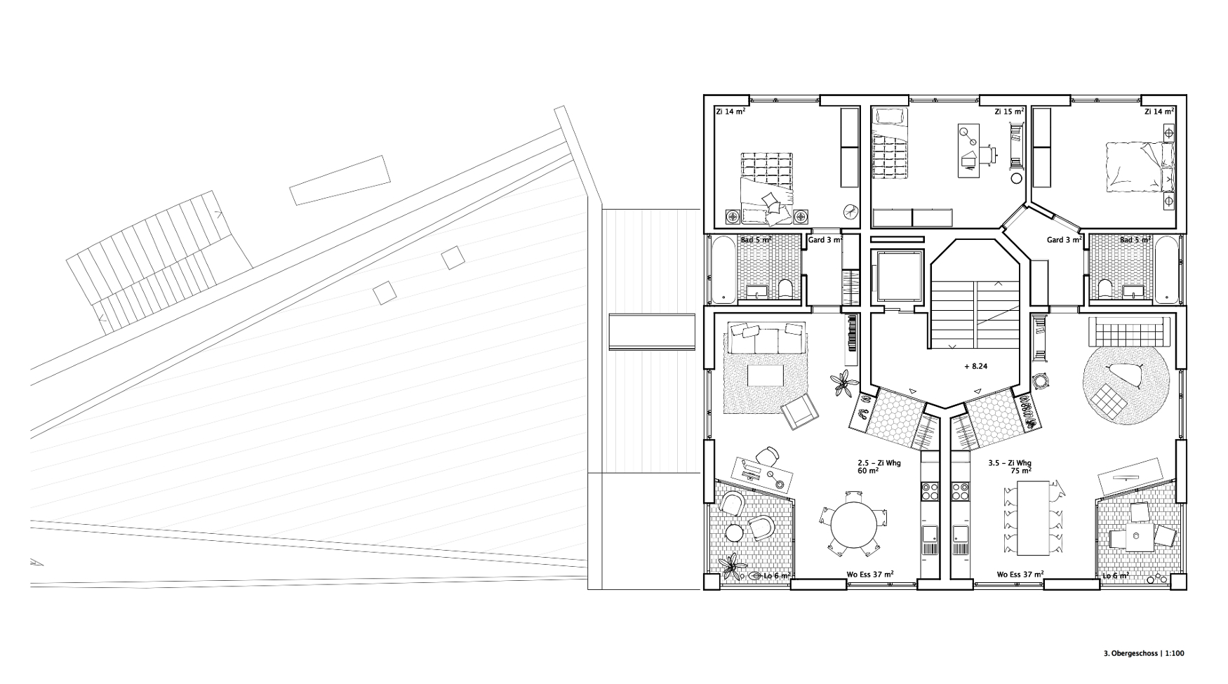
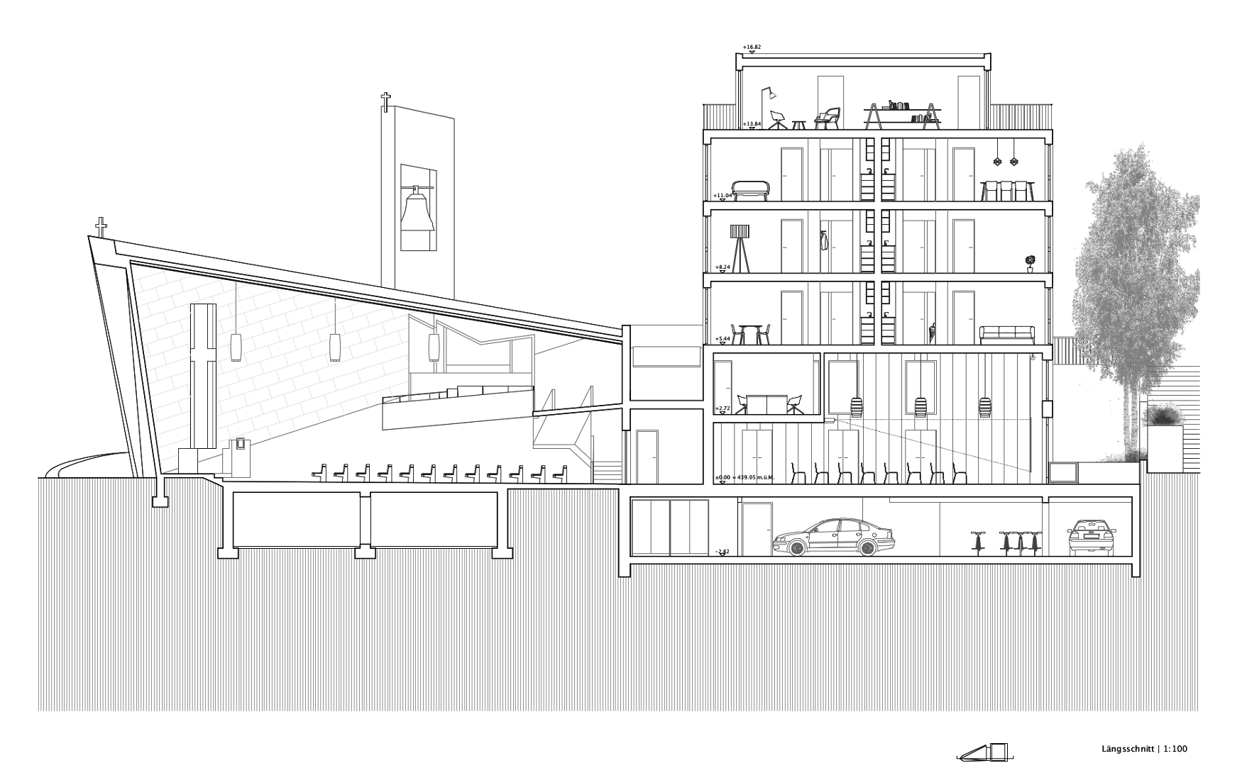
Neben der denkmalgeschützten Kirche entsteht ein Neubau mit Räumen für die Kirchgemeinde sowie Wohnungen. Das vorliegende Projekt entspringt dem Wunsch, die Teile des Ensembles in ein klareres Verhältnis zueinander zu setzen und dem expressiven Sakralbau deutlicher den Hauptauftritt zu überlassen, indem sich der Neubau etwas zurücknimmt. Der Neubau weist dementsprechend eine geometrisch einfache Kubatur auf und ist vom Kirchenschiff abgerückt. Zwischen den beiden Teilen des Ensembles entsteht dadurch – gewissermassen als gebaute Fuge – ein niedriger Zwischenbau mit einem neuen zentralen Eingangsfoyer. An der Kurvenstrasse springt er zurück und artikuliert damit den Nebenzugang zur Empore und zu einem neu geschaffenen Velounterstand. Das bestehende Eingangsportal erscheint nicht mehr als einseitig an die Kirche angelehnter Appendix, sondern fungiert neu als eigenständige Fassade des Zwischenbaus und wird durch ein hangwärts ansteigendes Dachvolumen bekrönt.

Client
ELKZ Evangelisch-Lutherische Kirchgemeinde Zürich
Time 2016-2020
Team Tommi Mäkynen, Mirjam Niemeyer, Sevim Yildiz, Zofia Józefowicz
Collaboration Ramser Schmid Architekten