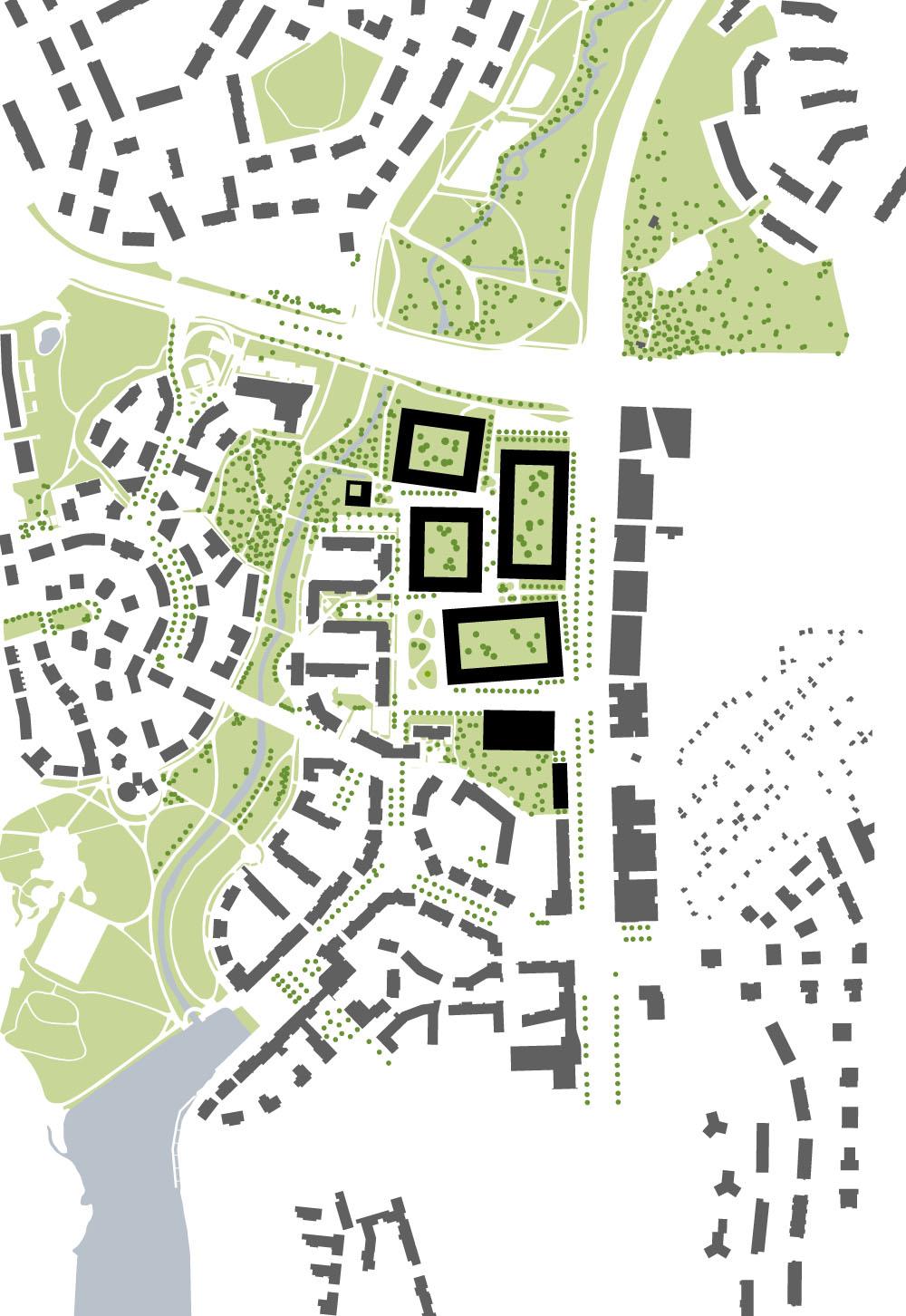
Ruskeasuo Neighbourhood, Helsinki FI, 2013
On a prominent site at one of the main entrances to the inner city of Helsinki a new residential quartier is developed. After several studies a solid urban block-layout was chosen as the basis framework for the new neighborhood. High density perimeter blocks are combined with accentuating high-rises along the main entryway passing the quarter. The new neighborhood integrates itself to the existing Quarter Pikku-Huopalahti by adding to the color-scheme and by creating a new addition to the network of public spaces – the new square becomes a meeting place for the old and new residents. The well connected layout creates differentiated urban spaces and situations supporting the emergence of urban life. At the same time the ample courtyards create peaceful and intimate, yet communal, spaces in a smaller scale. In order to create a pleasent urban environment an to maximize the efficient use of land parking is integrated in to the blocks under the courtyards – the courtyards become more intimate and receive more sunlight. The simple block concept combined with strong color concept allows for typological and architectural richness without loosing the common neighborhood identity.
Client City of Helsinki FI
Time 2013-2014
Team Mirjam Niemeyer, Tommi Mäkynen, Antti Ahlava, Jonathan Kischkel, Lauri Salminen





